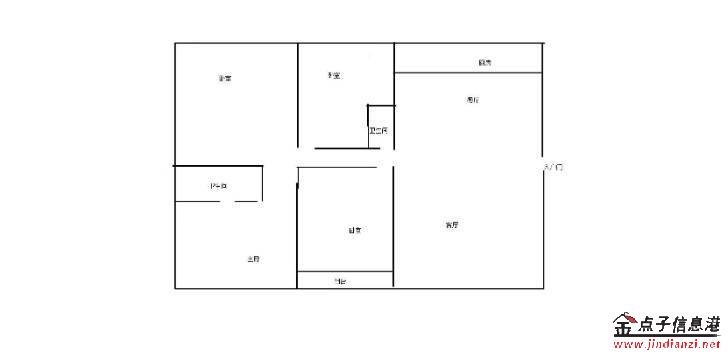
汇源首座二楼143.99四室2厅2卫1阳证满两年双气69.8
生活交通方便,看房找我18266349503













电话/手机:
您可以这样电话联系:“您好,我从 莱芜金点子信息港 看到您发布的...信息,请问...”
发布会员:莱芜专业房产 

如果此信息不适合,您也可以发布一条信息,坐等反馈 ?我要免费发布
网友评论 (留言联系信息发布人,推荐使用即时通站内短信)- 当前暂无评论
手机扫描二维码查看↑
相关信息
- 汇鑫花园北埠3楼90平双证双气精装送储34.8万可贷款
- 东海花园1楼带80平院子240平简装双气大产权99万元P
- 芳馨园朝阳小区一楼带院子精装三室双气大产权86万元P
- 汇源首座电梯洋房8楼165平四室带车位大产权98万元P
- 汇源首座二楼143.99四室2厅2卫1阳证满两年双气69.8
- 3室/90平米/香山名郡8楼对外出租
- 39万/124平米/吕花园南区汶源学区房出售
- 前宋小区三楼100平3室1厅1卫1阳台双气带储藏室46万
- 168000元/1500平米/张家洼长勺北路与沈张路交叉口东100米
- 前宋小区二楼113平3室2厅1卫2阳双气带车库50万
- 碧桂园天樾11楼144平双证证满两年带车位136万
- 汇源首座3楼143平证满五年带家具家电74.8万
置顶信息随机展示
- 山东天达电力工程有限公司急聘:仓库管理员;普工、起重工指挥,安全员;吊车司机一名
- 招聘 车间男操作工10名
- 乳小白饮品招聘店长、店员,年龄18-40岁,两班倒
- 新建厂房车间出租,面积2700平方和1700平方,交通便利,位置优越,独立院子,有配套办公室
- 2000元/高新区仓库急聘保安2名,非诚勿扰!
- 本公司现招聘数控折弯工、铆焊工,要求25-45岁之间
- 百亿补贴美妆回收,深圳一手档口,莱芜目前有中转仓库,价格跟深圳行情当天返米
- 全/兼皆可/5000元/莱芜邮政工人招聘
- 天天招人,现金现金
- 招聘男普工,矿井下打混凝土,55岁以下,日工资230元,月结
- 吉房出租:莱芜市直机关二区,二楼,约70平方,两室一厅,精致装修,干净整洁,家电全新
- 莱芜区诚聘女性办公室调度员
- 快递公司招聘:快递员,B证司机,小时工,客服财务
- 招4.2米箱货车司机1名,男性
- 北埠烧烤店转让,内外四百平,有固定客源,停车方便,因家中有事忍痛转让


